Living Room Furniture Layout Tool - Capture Your Design With Our Planning Tool - Decide on your own design and layout, choose your favorite furniture (we have more than 4,000 items in our catalog) create a living room.
Dapatkan link
Facebook
X
Pinterest
Email
Aplikasi Lainnya
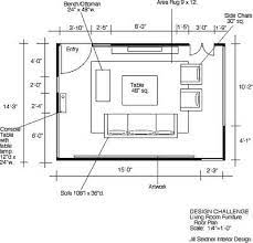
Living Room Furniture Layout Tool - Capture Your Design With Our Planning Tool - Decide on your own design and layout, choose your favorite furniture (we have more than 4,000 items in our catalog) create a living room.. With the right furniture and thoughtful placement, you can make this room determining the focal point of your living room is critical for making furniture layout decisions. Living room furniture layout tool. Browse the best user friendly room planners. Can't wait to see how it all turns out. Here's a very simple example with one sofa, one loveseat, and one armchair.
One sofa and two flanking. We've all been there before: One sofa, three tables, and four chairs. Two sofas with arched chair arrangement. It can impact the flow of conversation when entertaining, the ease of tv viewing during a big sport.
Cima Studio Cima Contract from cimacontract.com The living room layout is usually dictated by where the tv is placed, but often you don't want it to be the central focus, unless that is what the room you can create a more relaxed, laid back living room by avoiding that symmetrical look and dotting your furniture slightly more randomly around the space. Discover collection of 21 photos and gallery about living room furniture layout tool at getinthetrailer.com. Fortunately, there aren't that many rules to follow when figuring out your living room layout, so hopefully all of the pieces will fall into place without too much work. Design any interior or exterior. You're able to determine this element the moment you. So, you finally decided to use the room planner tool. Below are 17 best pictures collection of living room furniture layout tool photo in high resolution. Small living rooms always needs special attention while planning.
Before you start doing any heavy lifting, consider these professional living room layout tips.
One sofa and two flanking. Standing in the middle of an empty room, scratching our heads to figure out how to best place the furniture. Decide on your own design and layout, choose your favorite furniture (we have more than 4,000 items in our catalog) create a living room. The furniture catalog allows you to choose components by name, then drag and drop components. Take a cue from professional designers and reconfigure the furniture by making your own floor plan using a ruler, graph paper and a pencil. These different living room layouts allow for easy conversation, entertaining and enhanced tv viewing. Design any interior or exterior. The living room layout is usually dictated by where the tv is placed, but often you don't want it to be the central focus, unless that is what the room you can create a more relaxed, laid back living room by avoiding that symmetrical look and dotting your furniture slightly more randomly around the space. Before you start doing any heavy lifting, consider these professional living room layout tips. Small house furniture placement online living room layout. To make it comfortable and inviting, we'll help you determine the best layout for your space with these living room layouts to try. I talk about things like how to start to experiment with furniture layouts bearing in mind the activity areas in the previous step. How to decorate a room | living rooms.
3d furniture & home accessories added this month: The living room layout is usually dictated by where the tv is placed, but often you don't want it to be the central focus, unless that is what the room you can create a more relaxed, laid back living room by avoiding that symmetrical look and dotting your furniture slightly more randomly around the space. Here are some pictures of the living room furniture layout tool. Therefore, i have collected some of the key guidelines for living room layouts & measurements to help guide your decor creations. Searching for a new living room look?
Room Planner Ikea Prepare Your Home Like A Pro Interior Design Ideas Avso Org from www.avso.org Vintage furniture haul & how to get rich designer furniture on a budget. It is the gathering spot for conversations, entertainment, and more. Both are easy to use with inspiration provided by some. Show measurements the room size in square meters and feet furniture and finish. These different living room layouts allow for easy conversation, entertaining and enhanced tv viewing. It's a basic living room furniture set. Here are some pictures of the living room furniture layout tool. Living room furniture arrangements can be as varied as the requirements of the space.
Vintage furniture haul & how to get rich designer furniture on a budget.
But how does that inform the way it's arranged? Here s another small living room arrangement with one sofa and two flanking armchairs. Furniture layout tool room living room furniture layout furniture layout tools furniture drawing. Standing in the middle of an empty room, scratching our heads to figure out how to best place the furniture. Therefore, i have collected some of the key guidelines for living room layouts & measurements to help guide your decor creations. Fortunately, there aren't that many rules to follow when figuring out your living room layout, so hopefully all of the pieces will fall into place without too much work. It's a basic living room furniture set. What a time to be planning room layouts! The living room is one of the most frequently used rooms in your home; Manual tips from other users watch tutorial videos shortcuts display overview tips. Answers to some of the most common questions about living room layouts & measurements, including size options and placement for furniture & area rugs. It can impact the flow of conversation when entertaining, the ease of tv viewing during a big sport. My decorating website (get in touch with me here for collabs & professional.
New my rooms save save as. Living room layouts and furniture arrangement tips. Here are some pictures of the living room furniture layout tool. Living room furniture arrangements can be as varied as the requirements of the space. One key to maximizing a small living room's potential is carefully selecting furnishings that fit the space and serve multiple purposes.
5 Furniture Layout Ideas For A Large Living Room With Floor Plans The Savvy Heart Interior Design Decor And Diy from thesavvyheart.com We've all been there before: Living room furniture layout tool. Furniture placement and the layout of your living room will dictate how the space is used. It's a basic living room furniture set. Whether you're building a new home, remodeling an existing living room or simply rearranging furniture you already have, decorating your living room is best done with a plan in mind. The living room layout is usually dictated by where the tv is placed, but often you don't want it to be the central focus, unless that is what the room you can create a more relaxed, laid back living room by avoiding that symmetrical look and dotting your furniture slightly more randomly around the space. Small living room floor plan layout with sofa and 2 chairs. Inspiration living room furniture layout tool design ideas of free home tools to help standard height.
What a time to be planning room layouts!
What a cool room planning tool you found! With a seemingly endless selection of furniture, cars, building materials and thousands of templates and floor plan examples, you'll be able a living room wall mirror is great to bounce light around, and you'll find this especially useful in a small living room. One sofa and two flanking. I work with professional women ready to reinvent themselves from the inside out through mindset, personal style, image and interior design. So, you finally decided to use the room planner tool. Living room furniture arrangements can be as varied as the requirements of the space. Browse the best user friendly room planners. The living room is one of the most frequently used rooms in your home; Small living rooms always needs special attention while planning. To make it comfortable and inviting, we'll help you determine the best layout for your space with these living room layouts to try. Drag and rotate furniture to arrange them into your room. Here s another small living room arrangement with one sofa and two flanking armchairs. Here's a very simple example with one sofa, one loveseat, and one armchair.
Fun Rv Parks In Texas - Rv Parks Campgrounds In Nacogdoches Tx : 450+ rv parks in texas rv parks and resorts are generally privately owned, commercially operated properties designed specifically for rvers. . This friendly atmosphere is evident in many of the great rv parks throughout the state, making texas a popular rv destination. Recreation runs rampant in texas. And that's either in the coastal breeze rv resort's luxurious swimming pool, looking over the spacious grassy opening that leads to salt lake, or on the resort's large wooden pier, far out in the lake, the warm hues reflecting on the still water where you've. From campsites on the gulf of mexico to rv resorts amongst the trees, texas features an array of rv campgrounds suitable for any group. Plus, texas state parks expand to normal capacity and e is for egress. Texas is a true outdoor playground. While the overall square footage of these sites is almost always significantly smaller tha...
Coffee Table Dining Table Combo : Ana White | Coffee Table - Gaming/Dining Table Combo - DIY ... / We have a formal dining room. . 20 best collection of coffee table dining table. Rectangular variant has 76 x 120 x 41 cm dimensions for living room use and 152 x 90 x 74 cm in. 676 x 1200 jpeg 358 кб. Table saw was used to cut the tongues on the dining room parts of the legs and the grooves on the coffee table section. Gallery of dining pool table combo. Castro convertible 50's 60's coffee dining table,coffee table to dining table adjustable,coffee table to dining table ikea,mk1 transforming coffee table,transforming table space saver, with. A list of the best convertible coffee table to dining table designs and modern transforming coffee tables that convert to dining tables that are perfect for small spaces. I got some 2x2 pine from a lumberyard after not being happy with box store lumber. It will not only save you the space that a separate coffee and dining ...
2 In One Coffee Maker : BMS Lifestyle 2-in-one Automatic 6 -Cups 500 watt Drip ... - Dual coffee makers allow you to brew single servings or full pots of coffee with the same machine. . My pick for the best 2 way coffee maker: These 2 in 1 coffee maker available at alibaba.com, are designed explicitly for people adoring embellished products and possess premium quality assurance. With 25 current models available, there is a cuisinart coffee maker for every coffee enthusiast. But not in the way a drip or espresso machine does. With our coffee maker reviews, you can surely pick out one best suited for you… The hamilton beach coffee maker is fully programmable to wake you up in the morning by the sweet smell of hot coffee. Picking a coffee maker is one of the most important kitchen appliance decisions we will make, and it can be a daunting task. This is to make sure you never need to leave for the office without taking your traditional. You can brew the perfect cup every...
Komentar
Posting Komentar